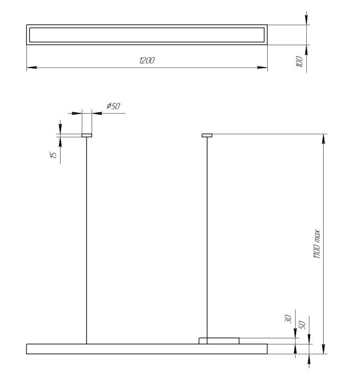
Светильник светодиодный Block SPO-115-W-40K-036 36Вт 4000К 3100Лм IP40 1200*100*50 белый подвесной G

цена
3 750,22 ₽/шт
наличие
Под заказ
шт
Подобрать аналогСвязанные товары

Описание и характеристики

Подвесные светильники "Geometria" различных форм и размеров позволят реализовать дизайнерские идеи освещения пространства. Для каждой модели доступно 2 варианта цвета: белый и черный. Предусмотрена возможность регулировки высоты установки до 1м при помощи троса. В комплект поставки входит круглое крепление к потолку. Подвесная система максимально эстетична, питание идет по тросу. Корпус изготовлен из стали, покрытой порошковой окраской. Изолированный блок питания устанавливается на корпус светильника и входит в комплект.
Тип лампы
Светодиод. (LED) несменная
Цоколь (патрон) лампы
Нет (без)
Количество ламп (источников света)
1

Связанные товары

Аналоги